Istra, Višnjan okolica - Prodaja građevinkog zemljišta sa dozvolom i projektnom dokumentacijom
prodaja Građevinsko stambeno zemljište
Višnjan, Višnjan
463.000 € 3.488.474 kn
Ostali podaci o nekretnini
- Cijena 463.000 €
- Cijena /m2 166,55 €
- Udaljenost od mora 12000 m
- Udaljenost od centra 5000 m
Opis nekretnine
- Blizina centra
- Miran predio
- Blizina dućana
- Blizina škole
Opis nekretnine
PRODAJA GRAĐEVINSKOG ZEMLJIŠTA – OKOLICA VIŠNJANA, 12 KM OD POREČA
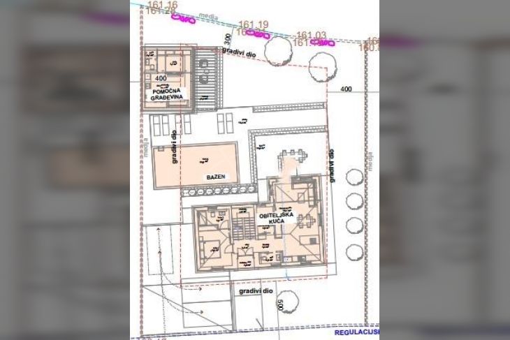
Na prodaju je veliko građevinsko zemljište površine 2780 m² u okolici Višnjana, udaljeno 12 km od Poreča.
Zemljište je parcelirano na 3 manje parcele. Za svaku parcelu postoji idejno rješenje za vilu s bazenom, a za jednu parcelu postojeća je građevinska dozvola.
Dodatne prednosti:
-
Zemljište je na ime tvrtke, što znači da ne plaćate porez na kupovinu
-
Na dan kupnje, kupac dobiva i firmu na poklon s svojom dokumentacijom koja je do tog dana već plaćena i evidentirana na firmu
-
Pravilni oblik i ravna konfiguracija terena, idealno za gradnju
-
Lokacija u mirnom dijelu urbanog istarskog sela, s pogledom na prirodu
-
Struja i voda u neposrednoj blizini
Ova nekretnina predstavlja izvrsnu priliku za investitore ili privatne kupce koji žele graditi luksuzne vile u srcu Istre.
Za više informacija ili dogovor oko razgledavanja, kontaktirajte nas.
____________________________________________________
Agencijska provizija naplaćuje se u skladu s Općim uvjetima poslovanja
koji su dostupni na
stranici www.elite-nekretnine.hr/opci-uvjeti-poslovanja.
Kontaktirajte nas
-
Vele Dražice 77
51218, Dražice - +385 51 444 488
- [email protected]
- Agent
- Sandra Baričević
- +385 51 4444 88
- +385 91 250 33 31
